STUDENT WORK
YICONG CHANDLER SHAN
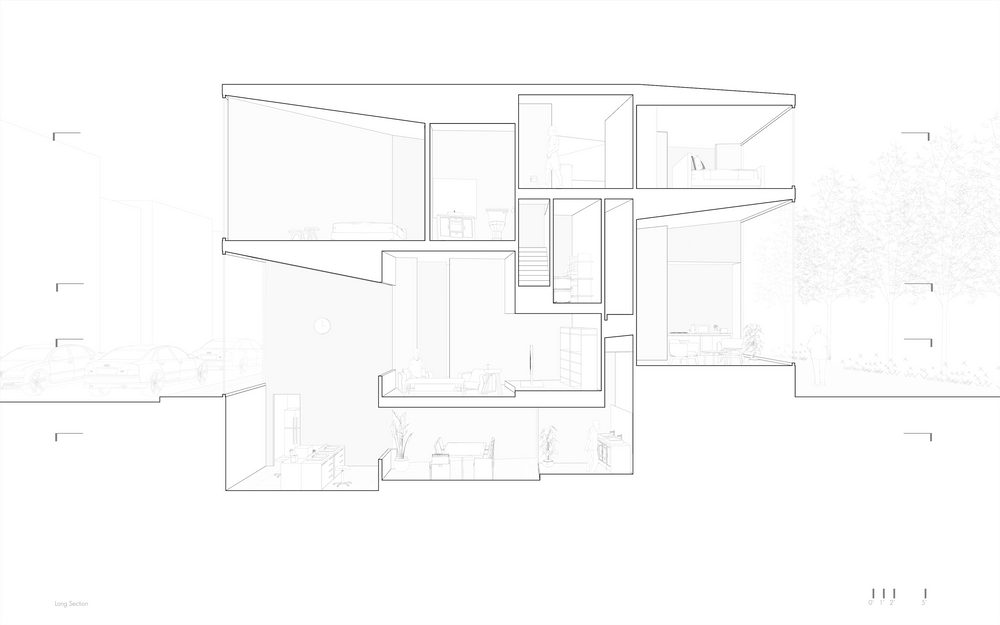
“URBAN STEREOTOMY”
In designing an urban retreat, this project claims that its identity should come from its surrounding urban environment. As a result, this project can be interpreted as ex¬tensions of the street, the alleyway, the residential building on the north side, and the service building on the south side, all extending into a mass in the urban site and carve out the mass into habitable spaces that are the volumetric extension of the surroundings. This project proposes a new way of living that, rather than traveling through rooms, the inhabitant of this project is traveling through facades that defines the urban landscape as it is; rather than living in the house, the inhabitant is truly living in the urban landscape.









︎︎︎BACK ︎
MELISSA HARRIS
Maggie Hawley
Yicong Chandler Shan
ISHAN PAL
Caroline Kirk
Yin To Wong
JONO STURT
Man Lam Cheng
Nicolas Hills
ANCA TRANDAFIRESCU
Chenkun Ma
Yiran (Lisa) Liu 
PETER YI
